Model Passion 44P 



≫≫ 構想過程 ≪≪



制作


2013 5/30

シャーシーが出来上がって来ました、

SUS、レーザー加工です、大変美しい、

いよいよ制作にかかります。



2013 6/2

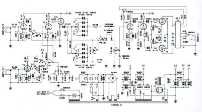
図面上に実態配線図を書きます、

先に実態図を書いておくのは良いアンプ制作の秘訣です、

ワイヤリングの取り回し、パーツの配置、等はこの段階で十分に考慮しておきます。



実態配線図が完成したら、次にC/R部品等を排除した、ワイヤリングのみの図面を書きます、

要するに配線のレイヤー図(下層部)を作る訳です、

このワイヤリング図にはそれぞれの行き先、ワイヤーのカラーも指定しておきます、



更に、今度はワイヤリングを排除した、C/R部品のみの図面を書きます、

レイヤー図の(上層部)に相当します、

実際の配線はワイヤリングの下層部から行います、下層部の配線が総て完了にた後に上層部のC/R部品を取り付けて行きます。



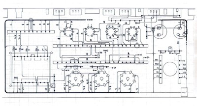
レイヤー1、下層部(ワイヤリング)完成


2013 6/14

ワイヤリングのみ、完了致しました、

実際の配線ではレイアウト、枝ぶり、は若干図面とは異なる部分もあります。



アースラインはブロック毎にまとめる、

シャーシーへの接地は入力ジャック、




レイヤー2、上層部(ワイヤリング)

2013 6/18
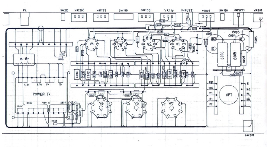
パワーアンプ部分のみ完成、出力44W、 チュークインプット安定化のためリニアりティー、すこぶる良好、残留雑音1mV以下。


出力管EL34 動作環境
プレート電圧:520V、 スクリーン電圧:335V、 グリッド電圧:-27V、 0信号時電流:37mA×2、  最大信号時電流:100mA×2
負荷低高:5KΩ、 出力:44W


2013 6/27



配線完了致しました。




入力信号ライン部分、

トーンコントロール部分、




トーンコントロール特性


SW130にてトーンコントロールのターンオーバー(屈折点 1〜5)を任意に設定する事が出来ます、

  ポジション1 : 低域に重点を置いた設定で、太い中低音と厚い響きが特徴でJazzギターに最適です、
  ポジション2 :    -----
  ポジション3 : 標準的な設定です、
  ポジション4 :    -----
  ポジション5 : 高域に重点を置いた設定で、音が前出る設定で歪を併用した場合に効果的です、

それぞれのポジションで低域、高域、それぞれに+20dB程度の調整を可能にしました、これにより幅広い音楽シーンに対応出来ます。

[ 続く ]